Hier berichten wir über den Stand des Projektes Gätzli.
Baueingabe Ende August 2024
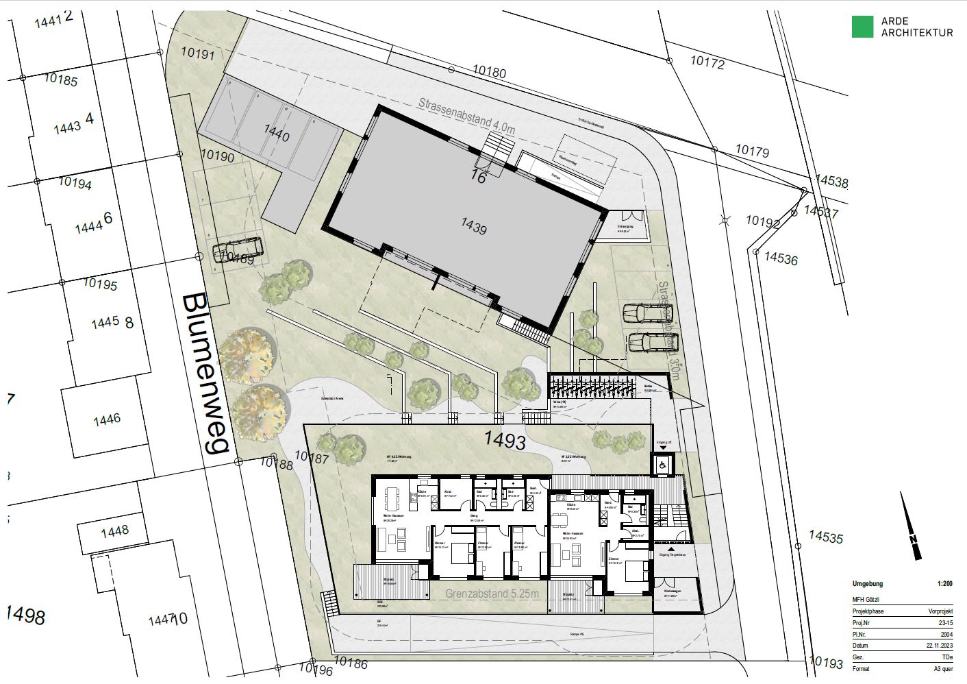
Das Baugespann steht, die Dimensionen des Neubaus sind erkennbar.

Projektplan

Leider steht das Baugespann immer noch, weil eine Einsprache behandelt werden musste. Nun liegt die Baubewilligung der Gemeinde vor.
.